Du Japon à l’Ouganda : Des briques de terre pour la résidence universitaire ASHINAGA UGANDA par TERRAIN architects
La présence du Japon sur le continent africain ne se résume pas qu’aux lycéens bouquinant secrètement des mangas pendant la pause déjeuner. Des architectes japonais investissent régulièrement les tropiques africaines comme c’est le cas ici
La présence du Japon sur le continent africain ne se résume pas qu’aux lycéens bouquinant secrètement des mangas pendant la pause déjeuner. Des architectes japonais investissent régulièrement les tropiques africaines comme c’est le cas ici avec le projet de la résidence universitaire de l’ONG nippone Ashinaga Uganda de l’agence TERRAIN architects.

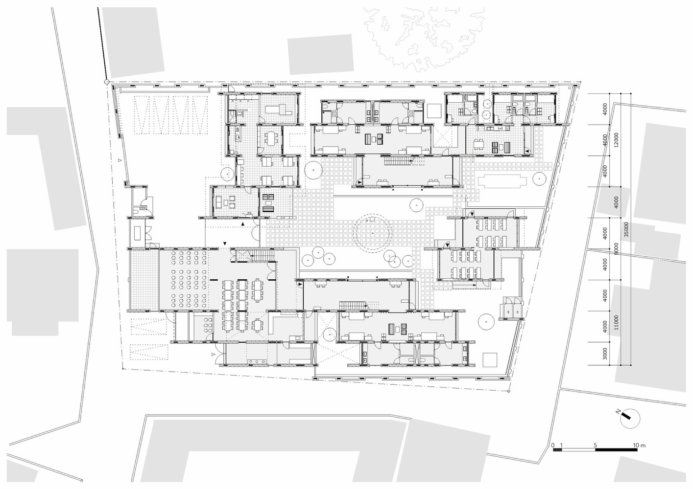
Retenu pour le cycle 2017-2019 du Prix Aga Khan d’Architecture, ce pensionnat accueille 50 orphelins de différents pays d’Afrique subsaharienne. Les étudiants apprennent à vivre ensemble avec des personnes de cultures différentes et se préparent à entrer dans des universités étrangères. La résidence est située à Nansana, une ville qui s’urbanise rapidement, à 13 km de Kampala, la capitale de l’Ouganda. La résidence est conçu pour répondre, simplement, au climat équatorial, avec des murs hauts positionnés Est-Ouest pour maximiser l’ombre, et de grandes ouvertures orientées Sud et Nord – qui apportent vent et lumière au fond des pièces. Les six bâtiments de la résidence abritent des salles de classe, une cantine, des dortoirs séparés pour les filles et les garçons, des bureaux et des locaux du personnel entourent une cour plantée, le centre social de la communauté.

Dans le site clos, le plus grand défi était de garder une bonne distance entre les activités individuelles tranquilles et les activités de groupe. Les pièces qui partagent un espace entre deux murs de briques – des espaces de 3 et 4 mètres de large appelés » baies » – sont réunies, tandis que celles qui se trouvent de chaque côté du mur sont séparées. De plus les portées entre trois ‘baies’ sont assez grandes pour que toute la communauté puisse s’y rassembler. Les architectes japonais ont remarqué que la population locale passait des journées chaudes à l’extérieur – à l’ombre et dans la brise – et ont suivi le même principe en plaçant de longs murs sur les côtés est et ouest pour donner de l’ombre, et en faisant de grandes ouvertures sur les façades nord et sud pour attirer vent et lumière profondément dans les pièces. Les cadres en béton permettent ainsi de grandes ouvertures et supportent des poteaux d’acier qui retiennent la toiture en treillis de bois recouverte de tôle.

Tous les matériaux et toutes les technologies de construction ont été achetés localement – dans le respect de la culture locale. Les briques rouges panachées ont été soigneusement sélectionnées et les murs soigneusement construits. C’est parce que le poids visuel et l’épaisseur confèrent au bâtiment un sentiment de sécurité, comme le tronc d’un grand arbre profondément enraciné dans la terre, ce qui donne envie aux gens de le toucher ou de s’appuyer dessus. Les architectes locaux ont pris un soin particulier à travailler avec les charpentiers et les maçons (et à les former) afin d’atteindre un haut niveau de qualité d’exécution, y compris, par exemple, en travaillant avec les maçons dans la fabrication des briques. Grâce au long processus de construction, les maçons et les ouvriers ont trouvé la fierté dans leurs propres briques qu’ils pensaient à l’origine sans valeur.

Site : Nansana, Uganda
Architectes : TERRAIN architects (Ikko Kobayashi + Fumi Kashimura), Tokyo, Japon
Surface : 2140.0 m2
Année : 2015
Crédit Photos :Timothy Latim ; Martin Jjumba
Architectes Locaux : Enock Kibbamu / Plantek Limited
Entrepreneur : Aswangah Construction Services
Illustrations : Mari Minato
- created by dji camera
Source : https://terrain-arch.com































